ここから本文です。
更新日:2026年2月24日
お知らせ

赤穂市は、海・山・川の豊かな自然と適度な都市機能がつまったコンパクトシティで、温暖な気候のとても住みやすいまちです。
南部地域は、平坦な市街地が広がっており、街の中心部である赤穂地区から、半径2km圏内に、商業施設や医療機関等の生活環境が揃っています。
北部地域は、緑豊かな山々と田園に囲まれ、のどかな風景が広がっています。自然の春夏秋冬を肌で感じることができるため、スローライフを楽しみたい方におすすめです。
| 1.赤穂地区 | 2.城西地区 | 3.塩屋地区 |
|---|---|---|
| 加里屋(かりや) 加里屋南(かりやみなみ) 加里屋中洲(なかす)1~6丁目 細野町(ほそのちょう) 中広(なかひろ) 山手町(やまてちょう) 元町(もとまち) 寿町(ことぶきちょう) 塩屋(しおや) 北野中(きたのなか) 南野中(みなみのなか) |
加里屋(かりや) 農神町(のうじんちょう) 上仮屋(かみかりや) 上仮屋北(かみかりやきた) 上仮屋南(かみかりやみなみ) 中広(なかひろ) 宮前町(みやまえちょう) 大町(おおまち) 城西町(じょうさいちょう) 若草町(わかくさちょう) 長池町(ながいけちょう) 惣門町(そうもんちょう) 六百目町(ろっぴゃくめちょう) 三樋町(みつひちょう) 塩屋(しおや) |
塩屋(しおや) 板屋町(いたやちょう) 片浜町(かたはまちょう) 平成町(へいせいちょう) 磯浜町(いそはまちょう) 古浜町(こはまちょう) 黒崎町(くろさきちょう) 新田(しんでん) 大津(おおつ) 木生谷(きゅうのたに) 折方(おりかた) |
| 4.西部地区 | 5.尾崎地区 | 6.御崎地区 |
|
折方(おりかた) |
尾崎(おさき) 大橋町(おおはしちょう) 松原町(まつばらちょう) 中浜町(なかはまちょう) さつき町(さつきちょう) 海浜町(かいひんちょう) 南宮町(なんぐうちょう) 清水町(しみずちょう) |
尾崎(おさき) 元塩町(もとしおちょう) 本水尾町(ほんみおちょう) 朝日町(あさひちょう) 正保橋町(しょうほばしちょう) 東浜町(ひがしはまちょう) 元沖町(もとおきちょう) 元禄橋町(げんろくばしちょう) 御崎(みさき) |
| 7.坂越地区 | 8.高雄地区 | 9.有年地区 |
| 坂越(さこし) 高野(こうの) 浜市(はまいち) 砂子(まなご) 北野中(きたのなか) |
中山(なかやま) 真殿(まとの) 周世(すせ) 高雄(たかお) 目坂(めさか) 木津(きづ) |
西有年(にしうね) |
| 地番によって、町名が複数地区にまたがる場合があります。 | ||
|
登録番号 |
第77号 |
|
|---|---|---|
|
|
||
|
種別 |
戸建て住宅 |
|
|
価格 |
7,900,000円 |
|
|
所在地 |
||
|
敷地面積 |
338平方メートル(102坪) |
|
|
建築面積 |
187.28平方メートル(56.75坪) |
|
|
構造 |
木造2階建て |
|
|
間取り |
8DK+納屋 |
|
|
建築年月 |
昭和31年10月築 | |
|
改修要否 |
要改修 | |
|
備考 |
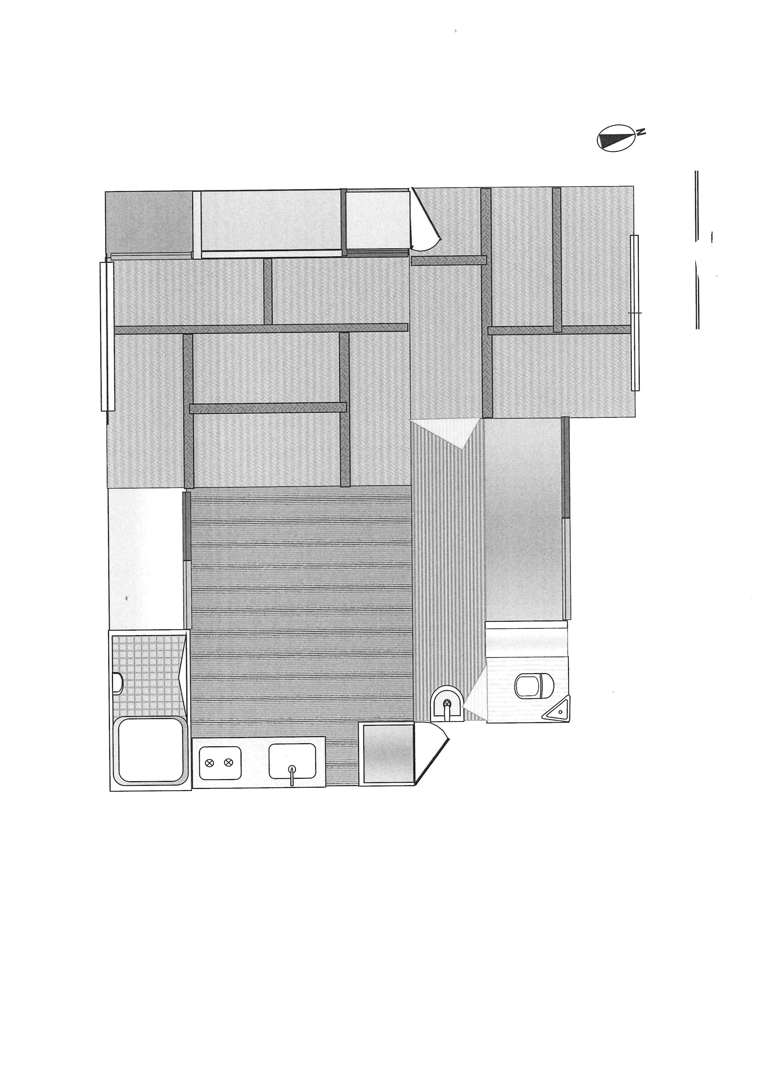
敷地内での家庭菜園可 【間取り・外観】
|
|
|
問い合わせ先 |
さくらハウジング |
|
|
登録番号 |
第94号 |
|
|---|---|---|
![]() |
||
|
種別 |
戸建て住宅 |
|
|
価格 |
賃貸45,000円/月 |
|
|
所在地 |
||
|
敷地面積 |
145.45平方メートル(約43.99坪) |
|
|
建築面積 |
104.06平方メートル(約31.478坪) |
|
|
構造 |
木造2階建て |
|
|
間取り |
5DK |
|
|
建築年月 |
昭和52年2月築 |
|
|
改修要否 |
改修不要 |
|
|
備考 |
拡大写真 |
|
|
問い合わせ先 |
株式会社徳信住宅 免許番号:兵庫県知事(3)第500252号 |
|
|
登録番号 |
第103号 |
|
|---|---|---|
|
|
||
|
種別 |
戸建て住宅 |
|
|
価格 |
2,000,000円 |
|
|
所在地 |
||
|
敷地面積 |
350.41平方メートル(105坪) |
|
|
建築面積 |
176.85平方メートル(53坪) |
|
|
構造 |
木造2階建て |
|
|
間取り |
8DK |
|
|
建築年月 |
昭和37年築 | |
|
改修要否 |
要小規模改修 | |
|
備考 |
敷地内での家庭菜園可 【間取り・外観】 拡大写真
|
|
|
問い合わせ先 |
有限会社スローライフ |
|
|
登録番号 |
第111号 |
|
|---|---|---|
![]() |
||
|
種別 |
戸建て住宅 |
|
|
価格 |
3,200,000円 |
|
|
所在地 |
||
|
敷地面積 |
198.34平方メートル(59.99坪) |
|
|
建築面積 |
109.68平方メートル(33.17坪) |
|
|
構造 |
木造1階建て |
|
|
間取り |
3SDK |
|
|
建築年月 |
昭和33年3月築 |
|
|
改修要否 |
要小規模改修
|
|
|
備考 |
拡大写真 |
|
|
問い合わせ先 |
平林建築工房株式会社 免許番号:兵庫県知事(1)第451621号 電話番号:0791-56-6046 |
|
|
登録番号 |
第115号 |
|
|---|---|---|
|
|
||
|
種別 |
戸建て住宅 |
|
|
価格 |
17,800,000円 |
|
|
所在地 |
||
|
敷地面積 |
142.09平方メートル(42.98坪) |
|
|
建築面積 |
103.51平方メートル(31.31坪) |
|
|
構造 |
木造2階建て |
|
|
間取り |
4LDK |
|
|
建築年月 |
平成13年8月築 | |
|
改修要否 |
改修不要 | |
|
備考 |
令和3年内装リフォーム済 【間取り・外観】 拡大写真
|
|
|
問い合わせ先 |
タカセ不動株式会社赤穂店 |
|
|
登録番号 |
第126号 |
|
|---|---|---|
![]() |
||
|
種別 |
戸建て住宅 |
|
|
価格 |
賃貸39,000/月 |
|
|
所在地 |
||
|
敷地面積 |
82.89平方メートル(約16坪) |
|
|
建築面積 |
42.97平方メートル(約13坪) |
|
|
構造 |
木造2階建て |
|
|
間取り |
5DK |
|
|
建築年月 |
不明 |
|
|
改修要否 |
改修不要 |
|
|
備考 |
敷地内での家庭菜園可 拡大写真 |
|
|
問い合わせ先 |
株式会社徳信住宅 免許番号:兵庫県知事(3)第500252号 |
|
|
登録番号 |
第128号 |
|
|---|---|---|
![]() |
||
|
種別 |
戸建て住宅 |
|
|
価格 |
6,800,000円 |
|
|
所在地 |
||
|
敷地面積 |
165.31平方メートル(50.00坪) |
|
|
建築面積 |
122.99平方メートル(39.32坪) |
|
|
構造 |
木造2階建て |
|
|
間取り |
7DK |
|
|
建築年月 |
昭和56年3月築 |
|
|
改修要否 |
改修不要
|
|
|
備考 |
拡大写真 |
|
|
問い合わせ先 |
有限会社アイ・ランドホーム 免許番号:兵庫県知事(5)第550112号 電話番号:0791-43-1743 |
|
|
登録番号 |
第130号 |
|
|---|---|---|
|
|
||
|
種別 |
戸建て住宅 |
|
|
価格 |
3,000,000円 |
|
|
所在地 |
||
|
敷地面積 |
281.92平方メートル(約85坪) |
|
|
建築面積 |
77.67平方メートル(約23坪) |
|
|
構造 |
木造2階建て |
|
|
間取り |
6DK |
|
|
建築年月 |
昭和39年10月築・昭和43年6月増築 | |
|
改修要否 |
要大規模改修 | |
|
備考 |
敷地内での家庭菜園可 【間取り・外観】 拡大写真
|
|
|
問い合わせ先 |
栄建築株式会社 |
|
|
登録番号 |
第132号 |
|
|---|---|---|
|
|
||
|
種別 |
戸建て住宅 |
|
|
価格 |
3,500,000円 |
|
|
所在地 |
||
|
敷地面積 |
188.42平方メートル(56.99坪) |
|
|
建築面積 |
119.96平方メートル(36.28坪) |
|
|
構造 |
木造2階建て |
|
|
間取り |
6DK |
|
|
建築年月 |
昭和51年7月築 | |
|
改修要否 |
要小規模改修 | |
|
備考 |
敷地内での家庭菜園可 【間取り・外観】 拡大写真
|
|
|
問い合わせ先 |
さくらハウジング |
|
|
登録番号 |
第133号 |
|
|---|---|---|
![]() |
||
|
種別 |
戸建て住宅 |
|
|
価格 |
13,800,000円 |
|
|
所在地 |
||
|
敷地面積 |
158.23平方メートル(47.86坪) |
|
|
建築面積 |
119.24平方メートル(36.07坪) |
|
|
構造 |
木造2階建て |
|
|
間取り |
3SLDK |
|
|
建築年月 |
平成7年11月築 |
|
|
改修要否 |
改修不要 |
|
|
備考 |
拡大写真 |
|
|
問い合わせ先 |
三菱電機ライフサービス(株)赤穂支店 免許番号:国土交通大臣免許(15)第1056号 電話番号:0791-43-7221 |
|
|
登録番号 |
第135号 |
|
|---|---|---|
![]() |
||
|
種別 |
戸建て住宅 |
|
|
価格 |
賃貸38,000/月 |
|
|
所在地 |
||
|
敷地面積 |
不明 |
|
|
建築面積 |
不明 |
|
|
構造 |
木造1階建て |
|
|
間取り |
2DK |
|
|
建築年月 |
不明 |
|
|
改修要否 |
改修不要 |
|
|
備考 |
敷地内での家庭菜園可 拡大写真 |
|
|
問い合わせ先 |
株式会社徳信住宅 免許番号:兵庫県知事(3)第500252号 |
|
|
登録番号 |
第137号 |
|
|---|---|---|
![]() |
||
|
種別 |
戸建て住宅 |
|
|
価格 |
6,500,000円 |
|
|
所在地 |
||
|
敷地面積 |
155.36平方メートル(46.99坪) |
|
|
建築面積 |
106.98平方メートル(32.36坪) |
|
|
構造 |
A棟鉄骨2階建て・B棟木造2階建て |
|
|
間取り |
A棟6R・B棟3DK |
|
|
建築年月 |
昭和55年8月築 |
|
|
改修要否 |
要小規模改修 |
|
|
備考 |
拡大写真 |
|
|
問い合わせ先 |
未来ie不動産株式会社 免許番号:兵庫県知事(1)第451695号 |
|
|
登録番号 |
第138号 |
|
|---|---|---|
![]() |
||
|
種別 |
戸建て住宅 |
|
|
価格 |
18,000,000円 |
|
|
所在地 |
||
|
敷地面積 |
229.25平方メートル(69.34坪) |
|
|
建築面積 |
125.12平方メートル(37.84坪) |
|
|
構造 |
木造2階建て |
|
|
間取り |
5DK |
|
|
建築年月 |
昭和41年11月築 |
|
|
改修要否 |
要小規模
|
|
|
備考 |
拡大写真 |
|
|
問い合わせ先 |
有限会社アイ・ランドホーム 免許番号:兵庫県知事(5)第550112号 電話番号:0791-43-1743 |
|
|
登録番号 |
第140号 |
|
|---|---|---|
|
|
||
|
種別 |
戸建て住宅 |
|
|
価格 |
2,950,000円 |
|
|
所在地 |
||
|
敷地面積 |
182.14平方メートル(55.09坪) |
|
|
建築面積 |
78.57平方メートル(23.76坪) |
|
|
構造 |
木造2階建て |
|
|
間取り |
4DK |
|
|
建築年月 |
昭和54年2月築 | |
|
改修要否 |
要小規模改修 | |
|
備考 |
【間取り・外観】 拡大写真
|
|
|
問い合わ せ先 |
さくらハウジング |
|
|
登録番号 |
第141号 |
|
|---|---|---|
|
|
||
|
種別 |
戸建て住宅 |
|
|
価格 |
8,800,000円 |
|
|
所在地 |
||
|
敷地面積 |
165.30平方メートル(50坪) |
|
|
建築面積 |
149.17平方メートル(45.12坪) |
|
|
構造 |
鉄骨2階建て |
|
|
間取り |
6LDK |
|
|
建築年月 |
昭和53年7月築 |
|
|
改修要否 |
要小規模改修 | |
|
備考 |
敷地内での家庭菜園可 【間取り・外観】 拡大写真
|
|
|
問い合わ せ先 |
有限会社大和住宅センター |
|
|
登録番号 |
第143号 |
|
|---|---|---|
![]() |
||
|
種別 |
戸建て住宅 |
|
|
価格 |
賃貸40,000/月 |
|
|
所在地 |
||
|
敷地面積 |
185平方メートル(55坪) |
|
|
建築面積 |
68平方メートル(20坪) |
|
|
構造 |
木造2階建て |
|
|
間取り |
5K |
|
|
建築年月 |
昭和48年12月築 |
|
|
改修要否 |
改修不要 |
|
|
備考 |
拡大写真 |
|
|
問い合わせ先 |
三菱電機ライフサービス(株)赤穂支店 免許番号:国土交通大臣免許(15)第1056号 電話番号:0791-43-7221 |
|
|
登録番号 |
第145号 |
|
|---|---|---|
![]() |
||
|
種別 |
戸建て住宅 |
|
|
価格 |
2,000,000円 |
|
|
所在地 |
||
|
敷地面積 |
75.63平方メートル(22.87坪) |
|
|
建築面積 |
66.11平方メートル(19.99坪) |
|
|
構造 |
木造2階建て |
|
|
間取り |
5K |
|
|
建築年月 |
昭和1年12月築 |
|
|
改修要否 |
要小規模改修 |
|
|
備考 |
拡大写真 |
|
|
問い合わせ先 |
有限会社アイ・ランドホーム 免許番号:兵庫県知事(5)第550112号 電話番号:0791-43-1743 |
|
|
登録番号 |
第146号 |
|
|---|---|---|
![]() |
||
|
種別 |
戸建て住宅 |
|
|
価格 |
賃貸52,000/月 |
|
|
所在地 |
||
|
敷地面積 |
不明 |
|
|
建築面積 |
60.7平方メートル(18.4坪) |
|
|
構造 |
木造1階建て |
|
|
間取り |
3DK |
|
|
建築年月 |
H10築 |
|
|
改修要否 |
改修不要 |
|
|
備考 |
拡大写真 |
|
|
問い合わせ先 |
株式会社徳信住宅 免許番号:兵庫県知事(3)第500252号 |
|
|
登録番号 |
第147号 |
|
|---|---|---|
![]() |
||
|
種別 |
戸建て住宅 |
|
|
価格 |
賃貸38,000/月 |
|
|
所在地 |
||
|
敷地面積 |
不明 |
|
|
建築面積 |
不明 |
|
|
構造 |
木造1階建て |
|
|
間取り |
2DK |
|
|
建築年月 |
不明 |
|
|
改修要否 |
改修不要 |
|
|
備考 |
拡大写真 |
|
|
問い合わせ先 |
株式会社徳信住宅 免許番号:兵庫県知事(3)第500252号 |
|
|
登録番号 |
第148号 |
|
|---|---|---|
![]() |
||
|
種別 |
戸建て住宅 |
|
|
価格 |
8,000,000円 |
|
|
所在地 |
||
|
敷地面積 |
342.24平方メートル(103.5坪) |
|
|
建築面積 |
119.79平方メートル(36.2坪) |
|
|
構造 |
木造2階建て |
|
|
間取り |
5SDK |
|
|
建築年月 |
昭和56年6月築 |
|
|
改修要否 |
要小規模改修 |
|
|
備考 |
拡大写真 |
|
|
問い合わせ先 |
有限会社アイ・ランドホーム 免許番号:兵庫県知事(5)第550112号 電話番号:0791-43-1743 |
|
|
登録番号 |
第149号 |
|
|---|---|---|
![]() |
||
|
種別 |
戸建て住宅 |
|
|
価格 |
6,800,000円 |
|
|
所在地 |
||
|
敷地面積 |
255.08平方メートル(77.16坪) |
|
|
建築面積 |
89.43平方メートル(27.05坪) |
|
|
構造 |
木造2階建て |
|
|
間取り |
5DK |
|
|
建築年月 |
昭和51年5月築 |
|
|
改修要否 |
要小規模改修 |
|
|
備考 |
拡大写真 |
|
|
問い合わせ先 |
有限会社アイ・ランドホーム 免許番号:兵庫県知事(5)第550112号 電話番号:0791-43-1743 |
|
|
登録番号 |
第150号 |
|
|---|---|---|
![]() |
||
|
種別 |
戸建て住宅 |
|
|
価格 |
12,800,000円 |
|
|
所在地 |
||
|
敷地面積 |
169.79平方メートル(51.36坪) |
|
|
建築面積 |
91.91平方メートル(27.80坪) |
|
|
構造 |
木造2階建て |
|
|
間取り |
3LDK |
|
|
建築年月 |
昭和62年2月築 |
|
|
改修要否 |
要小規模改修 |
|
|
備考 |
拡大写真 |
|
|
問い合わせ先 |
有限会社アイ・ランドホーム 免許番号:兵庫県知事(5)第550112号 電話番号:0791-43-1743 |
|
|
登録番号 |
第151号 |
|
|---|---|---|
|
|
||
|
種別 |
戸建て住宅 |
|
|
価格 |
3,800,000円 |
|
|
所在地 |
||
|
敷地面積 |
287.32平方メートル(86.21坪) |
|
|
建築面積 |
165.27平方メートル(49.99坪) |
|
|
構造 |
木造2階建て |
|
|
間取り |
8DK+2S |
|
|
建築年月 |
昭和6年1月築 | |
|
改修要否 |
要大規模改修 | |
|
備考 |
【間取り・外観】 拡大写真
|
|
|
問い合わせ先 |
タカセ不動株式会社赤穂店 |
|
PDF形式のファイルをご覧いただく場合には、Adobe Acrobat Readerが必要です。Adobe Acrobat Readerをお持ちでない方は、バナーのリンク先から無料ダウンロードしてください。
お問い合わせ